Beschrijving
Sfeervol wonen op een royaal perceel in Brantgum
Ringwei 20, 9153 BL BRANTGUM
Op zoek naar een goed onderhouden, verrassend ruime twee-onder-een-kapwoning met veel privacy én een supersize garage? Dan is Ringwei 20 in Brantgum mogelijk precies wat je zoekt! Deze fijne gezinswoning – gebouwd in de jaren ’70, maar inmiddels grotendeels gemoderniseerd – biedt comfort, ruimte en een heerlijk buitenleven. Hier kun je met recht zeggen: thuiskomen was nog nooit zó prettig.
Centraal gelegen, alles binnen handbereik
Rust, ruimte en toch dicht bij alle voorzieningen: wie hier woont, weet wat genieten is. Dit huis vind je in het hart van Brantgum, een knus Fries dorpje net boven Dokkum. Dat betekent: in alle rust wonen, geflankeerd door weidse uitzichten, maar tegelijkertijd ben je met enkele kilometers rijden zo in de stad voor werk, boodschappen of gezelligheid.
Sfeervolle woonkamer & complete keuken
De begane grond verwelkomt je via de praktische achterentree – da’s handig thuiskomen, zeker met vieze schoenen na een wandeling in het omringende groen. Verder tref je een lichte, ruime woonkamer met een mooie laminaatvloer die meteen die warme ‘kom binnen’-sfeer neerzet. Aansluitend vind je de keuken; die is uitgerust met alles wat je wenst: een moderne hoekopstelling, koelkast, vaatwasser en natuurlijk een oven en vijfpits gasfornuis waarop je probleemloos voor een groot gezelschap kookt. Zo wordt elk diner een feestje, van doordeweekse maaltijd tot uitgebreid weekendontbijt.
Comfortabel sanitair op niveau
Ook handig: het toilet op de begane grond is voorzien van een fonteintje – altijd fijn voor jou en je gasten. De badkamer, gerealiseerd in 2013, mag er wezen: een ligbad voor de relaxmomenten, een aparte douchecabine en een dubbel wastafelmeubel zorgen samen voor alle gemak en een luxe uitstraling.
Ruimte te over op de eerste verdieping
Wie naar boven gaat, wordt pas echt verrast door de fijne ruimte. Er zijn drie kamers: twee ruime slaapkamers met dakkapel (zodat je wakker wordt in het ochtendlicht!) en een extra kamer. Deze kamer heeft nu een witgoedaansluiting, maar functioneert ook uitstekend als hobbyruimte, kantoor of – jawel – een derde slaapkamer. Handig als je thuiswerkt, kinderen hebt of logees wilt ontvangen.
Zonnige, vrije tuin
Het echte buitenleven beleef je in de diepe, vrije achtertuin. Of je nu groene vingers hebt, wilt zonnen, barbecueën met vrienden of juist rustig een boek wilt lezen op het terras: je vindt altijd wel een plek waar je helemaal jezelf kunt zijn. Met 447 m² eigen grond heb je ruimte te over – ook voor kind en huisdier!
Unieke garage met extra’s
Last but not least: de royale, vrijstaande houten garage. Hier kun je met gemak je auto parkeren, maar hij biedt uiteraard ook zeeën aan bergruimte voor fietsen, tuingereedschap of zelfs een hobbyhoek. Dankzij de betonvloer, een praktische vliering en aanwezige elektra en wateraansluiting, ontbreekt het je werkelijk aan niets.
Een solide basis, boordevol comfort
Deze woning is traditioneel gebouwd in 1973 en staat dus letterlijk en figuurlijk stevig in zijn schoenen. Zowel de begane grond als de verdieping hebben een degelijke betonvloer. Het energielabel D wordt gecompleteerd door volledig HR++-glas rondom, zodat je comfortabel warm blijft zonder dat de stookkosten de pan uit rijzen. Ook is er in 2010 geïnvesteerd in nieuwe dakkapellen en is de groepenkast (met liefst 8 groepen) vernieuwd: plug & play voor al je elektrische apparaten dus!
Hier begint jouw volgende hoofdstuk
Of je nu starter bent, een jong gezin hebt, werkt vanuit huis of gewoon net dat beetje extra ruimte zoekt: Ringwei 20 is een plek waar elke doelgroep zich thuis voelt. Dankzij de sterke basis, de praktische indeling en de royale tuin hoef je alleen nog maar te verhuizen en te genieten van alles wat deze woning – en deze regio – te bieden heeft.
Kun jij je al voorstellen hoe het is om hier te wonen? Maak snel een afspraak voor een bezichtiging en ontdek de vele mogelijkheden. Wonen wordt hier écht genieten!
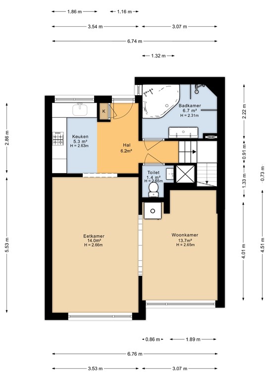
Indeling
Achterentree, meterkast, keuken met keukeninrichting in hoekopstelling voorzien van koelkast, oven, vaatwasser en vijfpitsgas-fornuis, ruime woonkamer met laminaatvloer, toilet met fonteintje, badkamer met ligbad, douchecabine en dubbelwastafelmeubel.
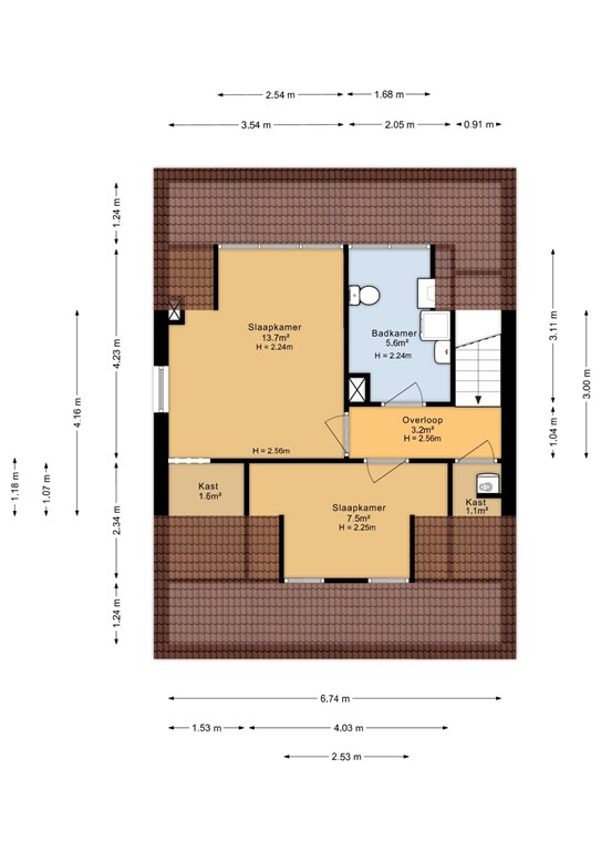
Eerste verdieping
overloop, drie kamers, waarvan twee slaapkamers met dakkapel en een werkkamer met witgoedaansluiting (eventueel ook geschikt als 3e slaapkamer).
Bijzonderheden
Deze woning is gebouwd op een oude terp. In de tuin ervaart men meer privacy doordat de achterliggende woning lager gelegen zijn.
Indien gewenst kan de woning volledig gestoffeerd worden verkocht.
Plattegronden
Ringwei 20 - Situatie - 2D.jpg
Ringwei 20 - Begane grond - 2D.jpg
Ringwei 20 - 1e verdieping - 2D.jpg
Ringwei 20 - Berging Vliering - 2D.jpg
Ringwei 20 - Berging - 2D.jpg
Ringwei 20 - Situatie - 3D.jpg
Ringwei 20 - Begane grond - 3D.jpg
Ringwei 20 - 1e verdieping - 3D.jpg
Ringwei 20 - Berging Vliering - 3D.jpg
Ringwei 20 - Berging - 3D.jpg