Beschrijving

Aan de rustige, brede Griene Wei in Easternijtsjerk staat deze verrassend ruime hoekwoning te wachten op nieuwe bewoners. Met een perceel van 216 m², een zonnige tuin op het zuidoosten en een royale oprit naast de woning is dit een plek waar je alle ruimte hebt om jouw woonwensen waar te maken. Ideaal voor starters die groot willen denken, maar ook een fijne gezinswoning dankzij de praktische indeling en uitbreidingsmogelijkheden.

Binnen vind je een lichte woonkamer met open keuken, waar je eenvoudig een moderne keuken kunt realiseren of openslaande deuren naar de tuin kunt toevoegen. Op de begane grond is bovendien een aangebouwde stenen berging/bijkeuken aanwezig – perfect voor extra opslag of zelfs een zolderverdieping. Op de eerste verdieping zijn drie ruime slaapkamers en een compacte badkamer met douche en wastafel. De vaste trap naar de zolder maakt het eenvoudig om nog meer woonruimte te creëren, bijvoorbeeld een extra slaapkamer, werkplek of hobbyruimte.
Buiten geniet je van een zonnige tuin en de vrijheid van een hoekwoning met achterom. De ligging is heerlijk rustig, maar toch praktisch: vlakbij de uitvalsweg rondom het dorp, waardoor je snel in Dokkum bent. Ook het Lauwersmeergebied en de Waddenkust liggen op korte afstand, ideaal voor natuurliefhebbers en watersporters. Easternijtsjerk zelf is een sfeervol dorp met een actieve gemeenschap en een rijke historie, waar je kunt genieten van het Friese buitenleven met alle voorzieningen binnen handbereik.

Deze woning is in 2015 voorzien van 9 zonnepanelen van 270 wP per stuk en in 2022 is extra muurisolatie aangebracht en is de CV-ketel vernieuwd. 

Kortom: Griene Wei 30 biedt ruimte, mogelijkheden en een fijne ligging. Een woning waar je jouw eigen ideeën kunt realiseren, een mooie plek waar je je helemaal thuis kunt voelen. Maak snel een afspraak voor een bezichtiging en ontdek het zelf!

Indeling

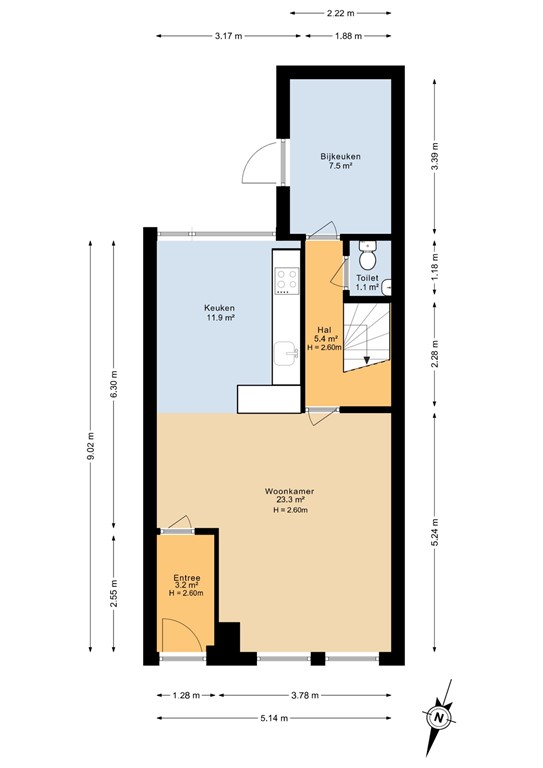
Bij binnenkomst stap je in de hal, waar zich ook de meterkast bevindt. Vanuit de hal kom je in de woonkamer met open keuken, deze is mooi ruim en door de grote ramen lekker licht. Aansluitend vind je een tussenhal met de toiletruimte en de vaste trap naar de verdieping. Op de begane grond is bovendien een praktische bijkeuken/berging aanwezig, ideaal voor extra opslag of om als wasruimte te gebruiken. Eventueel kan hier nog een zolder in aangebracht worden.

Eerste verdieping

Op de eerste verdieping kom je via de overloop bij drie fijne ruime slaapkamers, elk met voldoende licht en mogelijkheden om naar eigen smaak in te richten. Daarnaast vind je hier een badkamer, voorzien van een douche en een wastafel.

Tweede verdieping

De zolder is bereikbaar via een vaste trap en biedt goede mogelijkheden om extra woonruimte te creëren. Hier is de CV-ketel (bouwjaar 2022) opgesteld. Je kunt deze verdieping eenvoudig inrichten als extra slaapkamer, werkruimte of hobbykamer. Door het plaatsen van een groter dakraam of eventueel een dakkapel kun je bovendien nog meer licht en/of ruimte realiseren.

Tuin

Rondom de woning vind je een heerlijk ruim erf met volop mogelijkheden. 

De voortuin ligt op het noordwesten, grenzend aan een brede, rustige straat. Naast de woning bevindt zich een royale oprit, geschikt voor meerdere auto’s – ideaal voor gezinnen of bezoekers. Wil je nog meer buitenruimte? Door een afscheiding te plaatsen kun je een deel van het zijterrein eenvoudig bij de achtertuin betrekken. Zo creëer je extra speel- of zitruimte. Ook het realiseren van een carport of zelfs een garage behoort tot de mogelijkheden. De achtertuin is eveneens ruim en biedt alle vrijheid om naar eigen wens in te richten. Hier staat al een houten (fietsen)berging en dankzij de ligging op het zuidoosten geniet je van veel zon. Bovendien is er een praktische achterom, zodat je gemakkelijk toegang hebt tot de tuin.

Bijzonderheden

Nog even de belangrijkste punten van deze woning:

- Hoekwoning met veel ruimte en mogelijkheden;
- Recente CV-ketel en muurisolatie in 2022, 9 zonnepanelen van 2015;
- Perceel van 216 m² met zonnige achtertuin (zuidoosten) en achterom;
- Royale oprit voor meerdere auto’s;
- Ruime woonkamer met open keuken en praktische bijkeuken/berging;
- Drie slaapkamers en compacte badkamer op de verdieping;
- Grote zolder met vaste trap, CV-ketel (2022), geschikt voor extra woonruimte;
- Rustige ligging aan brede straat, dichtbij Dokkum, Lauwersmeer en Waddenkust.

Easternijtsjerk biedt goede dagelijkse voorzieningen zoals een kindcentrum met basisschool, kinderopvang en peuterspeelzaal, een supermarkt, dorpshuis, verschillende verenigingen e.d. Voor meer voorzieningen is de stad Dokkum per auto of evt. bus vlot bereikbaar. 

Wil je een keer komen kijken? Neem dan contact op met Otto Minnema van Factornoord Makelaars & Taxateurs in Hurdegaryp. Je bent van harte welkom!

Kenmerken