Beschrijving
NIEUWBOUW IN EEN AUTHENTIEK JASJE: INSTAPKLAAR, LEVENSLOOPBESTENDIG EN ENERGIELABEL A AAN DE WADDENZEE!
Zoekt u de charme van een woning uit 1910, maar eist u de kwaliteit en isolatie van nieuwbouw? Aan De Wiel 2 in het karakteristieke Peazens vindt u het beste van twee werelden. Deze vrijstaande woning is in de afgelopen maanden nagenoeg volledig herbouwd. Van het originele woonhuis resteren slechts drie buitenmuren; de rest van de woning – inclusief betonvloer – is volledig nieuw opgetrokken.
Het resultaat is indrukwekkend: een instapklare, moderne woning met Energielabel A. De woning is volledig geïsoleerd volgens het huidige bouwbesluit. Voor de verwarming is een nieuwe CV-installatie geplaatst, en in de woonkamer zorgt een moderne airconditioning voor extra comfort (koelen in de zomer, verwarmen in de winter).
De ligging maakt het plaatje compleet. U woont hier letterlijk aan de voet van de zeedijk. Binnen enkele stappen staat u oog in oog met het UNESCO Werelderfgoed De Waddenzee, waar u kunt genieten van de ongekende rust, ruimte en natuur.
Begane grond: Entree via de hal. Bij binnenkomst ervaart u direct de strakke afwerking van een nieuwe woning. De sfeervolle woonkamer staat in open verbinding met de ruime woonkeuken, wat zorgt voor een ruimtelijk en licht geheel. De woonkamer is bovendien voorzien van een airco-unit voor een optimaal binnenklimaat in elk seizoen.
Levensloopbestendig wonen is hier de standaard. Op de begane grond bevindt zich een royale slaapkamer met een directe toegang tot een luxe badkamer en suite. Hiermee is gelijkvloers wonen volledig mogelijk. Daarnaast is er een praktische inpandige berging aanwezig met ruimte voor opslag en witgoedaansluitingen.
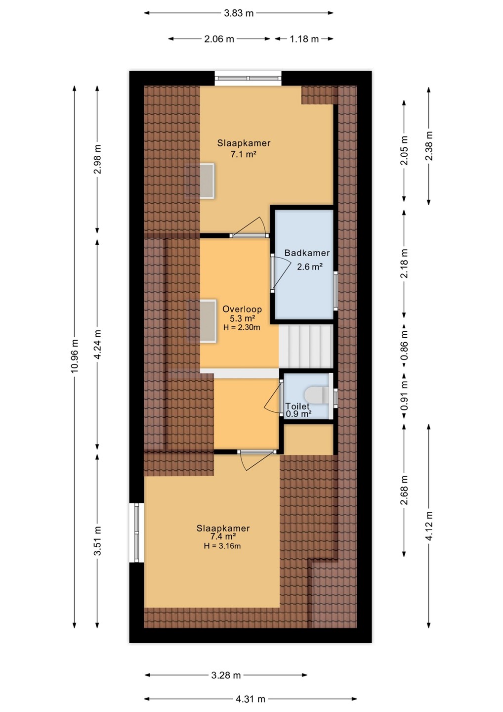
Eerste verdieping: De vaste trap leidt naar de volledig nieuwe verdieping. De overloop geeft toegang tot twee comfortabele slaapkamers. Ideaal voor kinderen, logés of als werkruimte. Op deze verdieping bevindt zich tevens een tweede badkamer en een separaat toilet op de overloop. Aan sanitair dus geen gebrek!
Tuin en omgeving: De woning staat op een perceel van 224 m². De achtertuin van circa 75 m² biedt een fijne plek om buiten te zitten zonder dat u veel tijd kwijt bent aan onderhoud. Peazens vormt samen met Moddergat een uniek tweelingdorp met een rijke historie en authentieke vissershuisjes. Voor dagelijkse boodschappen en voorzieningen ligt het dorp Anjum vlakbij, en de historische stad Dokkum is binnen 15 autominuten bereikbaar.
Wilt u deze transformatie met eigen ogen bekijken? Neem dan contact op voor een bezichtiging.
Indeling
Entree/hal met meterkast en trap naar eerste verdieping, toiletruime, wasruimte met cv-ketel (2025) is, slaapkamer met badkamer ensuite, woonkamer, woonkeuken met schuifpui naar tuin. aan de zijkant van de woning nabij de entree bevind zich de berging.
Eerste verdieping
Overloop, toilet, badkamer, 2 slaapkamers
Tuin
Ruime tuin aan de achterzijde van de woning. deze is tevens bereikbaar via de zijkant van de woning.
Bijzonderheden
- Compleet gerenoveerd/herbouwd (Q4 2025): Op 3 muren na is alles nieuw.
- Energielabel A: Volledig geïsoleerd (dak, muren, vloer, HR++ glas) volgens huidig bouwbesluit.
- Comfort: Nieuwe geïsoleerde betonvloer.
- Verwarming: Voorzien van vloerverwarming met een nieuwe CV-ketel én airconditioning in de woonkamer.
- Levensloopbestendig: Slaapkamer en badkamer op de begane grond.
- Sanitair: Totaal 2 badkamers en een separaat toilet op de verdieping.
- Locatie: Unieke ligging tegen de zeedijk (Waddenzee).
Wat u nog uit moeten uitzoeken en wat verkoper betaald en plaatst.
- tegels voor de badkamers en toiletten.
Dingen die u zelf na verkoop woning nog moet realiseren.
- Afschilderwerk binnen en buiten.
- vloerafwerking, bijvoorbeeld PVC of tapijt
- meubels in de badkamers en bijbehorende kranen.
- keuken