Beschrijving
Wonen op een rustige plek met volop ruimte en comfort? Dat kan aan De Twee Gebroeders 104A in Drachten!
Aan het einde van een rustige straat in de kindvriendelijke wijk De Folgeren staat deze goed onderhouden hoekwoning met aangebouwde garage, bijkeuken en een fijne tuin. Dankzij de ligging is er nauwelijks verkeer voor de deur – een ideale plek voor wie rust en ruimte zoekt.
De woning ligt op een perceel van 195 m² eigen grond en beschikt over een ruim voorterrein, waar je met gemak meerdere auto's, een caravan, camper e.d. kwijt kunt. Het centrum van Drachten ligt op fietsafstand en biedt een breed scala aan voorzieningen zoals winkels, horeca, scholen, theater en bioscoop.
Zoek je een geheel gemoderniseerde en ruime woning op een mooie plek? Maak dan een afspraak, want dan ben je hier aan het goede adres!
Indeling
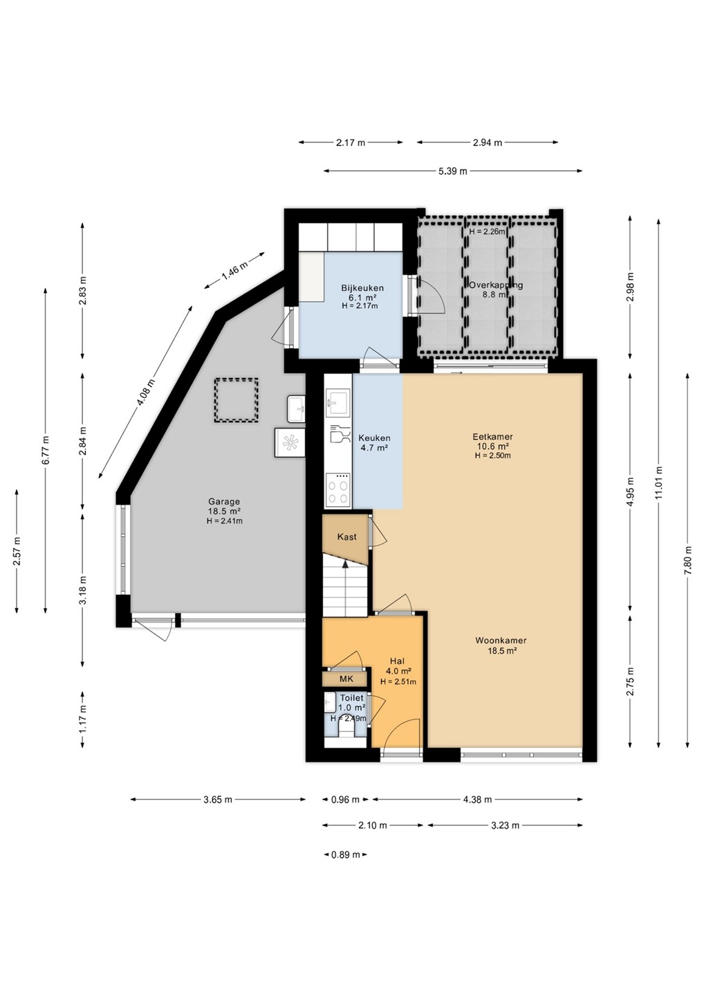
• Entree/hal met meterkast en trapopgang
• Moderne toiletruimte (2019) met hangend toilet en fonteintje
• Lichte woonkamer met inbouwkast en schuifpui naar de tuin
• Open keuken (2019) met inductiekookplaat, afzuigkap, vaatwasser, Quooker en een composiet werkblad
• Bijkeuken met een kastenwand in de stijl van de keuken en voorzien van een koel-vriescombinatie, oven en magnetron.
• Garage/berging met lichtkoepel, deur naar de tuin en elektrische sectionale deur
Eerste verdieping
• Overloop met vaste trap naar de 2e verdieping
• Drie ruime slaapkamers
• Moderne badkamer (2019) met douchecabine, hangend toilet, wastafelmeubel en designradiator
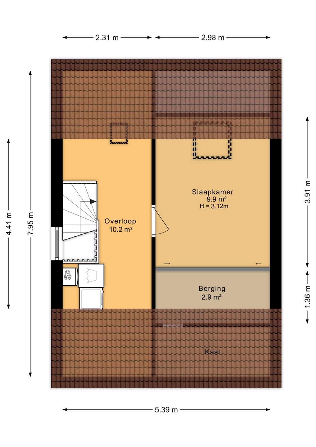
Tweede verdieping
Deze woning beschikt over een ruime zolderverdieping, bereikbaar via een vaste trap. De indeling is als volgt:
• Overloop met dakraam, opstelplaats voor de HR-combiketel (Remeha, 2019) en mechanische ventilatie
• Vierde slaapkamer met dakraam en ruime afsluitbare bergruimte.
Tuin
De tuin is verzorgd aangelegd. Aan de voorzijde is extra ruimte waardoor je op de ruime oprit veel parkeerruimte hebt; ideaal voor de boot, caravan etc. De achtertuin biedt dankzij de aangebouwde aluminium overkapping een heerlijke plek om beschut buiten te zitten. Er is ook een achterom aanwezig.
Bijzonderheden
Kenmerken & voorzieningen
• Traditionele bouw met betonnen vloeren tot in de nok!
• Deels kunststof en deels houten kozijnen met dubbel glas
• Veel vernieuwingen in 2019 zoals keuken, badkamer, toilet en CV-ketel.
• Ruim voorterrein voor meerdere voertuigen
• Zeer rustige en centrale ligging
Ligging
Drachten is de tweede plaats van Fryslân op basis van het aantal inwoners. Er wonen circa 45.000 inwoners. Hierdoor heeft Drachten een goed voorzieningenniveua met onder andere een uitgebreid winkelcentrum, gezellige horeca, bioscoop, theater, een ziekenhuis, diverse wijkwinkelcentra etc. Drachten ligt centraal in Fryslân en is met de auto of openbaar vervoer per bus uitstekend bereikbaar via de A7 (richting Groningen/Heerenveen) en de N31 (richting Leeuwarden).
Kortom: een instapklare gezinswoning op een rustige locatie met volop ruimte en comfort. Kom je snel kijken? Maak dan een afspraak met Otto Minnema van Factornoord Makelaars & Taxateurs.